Mit Blick auf die Marienkirche.

Marktberg 9, 17291 Prenzlau

630,00 €
Gesamtmiete

2
Zimmer

53,19 m2
Fläche

01.03.2026
Bezugsfrei ab

Mietpreis und Kosten

Nettokaltmiete 425,00 €
Nebenkosten 90,00 €
Heizkosten 115,00 €
Gesamtmiete 630,00 €
Kaution

Details

Objektnummer 1/312/1/9
Etage 4
Anzahl Zimmer 2
Wohnfläche 53,19 m2
Baujahr 1988
Heizungsart Fernwärme

Energieausweis

Energieausweisart Verbrauchsausweis
Jahrgang 2014
Wertklasse C
Energieverbrauchkennwert 89.00

Besondere Merkmale

  • Keller
  • Badewanne

Objektbeschreibung

1

Ausstattung

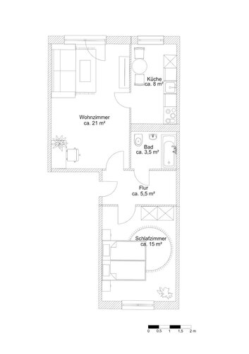
Hier haben Sie die Möglichkeit eine Zwei-Zimmer-Wohnung im 4. Obergeschoss anzumieten. Sie verfügt über ein innenliegendes Bad mit Badewanne und eine Küche mit Fenster.

Grundrisse

Lage

Die Stadt Prenzlau ist die Kreisstadt der wunderschönen Uckermark und liegt verkehrsgünstig etwa 100 km nördlich von Berlin und 50 km westlich von Stettin.

Kultur- und Naturliebhaber schätzen die Attraktivität der Stadt, die sich in den letzten Jahren zu einem beliebten Urlaubsziel entwickelt hat. Prenzlau punktet mit einem breit gefächerten Erziehungs- und Bildungsangebot. Neben Kitas, Grund- und weiterführenden Schulen gibt es in Prenzlau darüber hinaus ein Oberstufenzentrum, eine Volkshochschule, eine Musikschule, sowie diverse Aus-, Weiterbildungs- und Umschulungseinrichtungen. Mitten im Stadtgebiet verschmelzen Architektur und Freizeit in seiner schönsten Form: Freilichtbühne, Dominikanerkloster, Uckerseehalle und Seebad laden zum Verweilen und Genießen ein. Prenzlaus Infrastruktur ist gut ausgestattet – Fachgeschäfte, Ärzte, Krankenhaus, Kino, Restaurants und Cafés sind zentral gelegen und schnell erreichbar. Der Stadtbus und auch die Bahn (Richtung Berlin/Stralsund) fahren stündlich.


Innenstadt – Lage, Lage, Lage…

Diese ist hier nahezu perfekt! Das Wohngebiet Innenstadt profitiert gleichermaßen von seiner Nähe zur Einkaufsmeile der Stadt, der Friedrichstraße, und von seiner grünen Lage zwischen Stadtpark und der traumhaft schönen Uckerpromenade mit vielen Sitzgelegenheiten und einem großartigen Kinderspielplatz. Die medizinische Versorgung durch Ärzte und Apotheken ist hier hervorragend. Ganz nahe liegt für die Bewohner auch das kulturelle Prenzlau mit dem Dominikanerkloster, Uckerseehalle und dem Kino.

Zwischen Blindower Tor und Uckersee betreut die Wohnbau mehr als 2.000 Wohnungen. Hier, wo auf der Fläche des mittelalterlichen Stadtzentrums nach den Zerstörungen des zweiten Weltkrieges Schritt für Schritt das neue Stadtzentrum errichtet wurde, sind heute die Häuserzeilen der Wohnbau modernisiert und umgeben von gepflegten Grünbereichen.

Standort

Besondere Angebote der Wohnbau

Interesse an einer Besichtigung?

Besichtigung anfragen

Unser Vermietungsteam

steht Ihnen gern persönlich zu unseren Öffnungszeiten zur Verfügung.

03984 8557-73

vermietung@wohnbauprenzlau.de

Anschrift

Logo der Wohnbau Prenzlau

Wohnbau GmbH Prenzlau
Friedrichstraße 41
17291 Prenzlau

Telefon: 03984 8557-0

Öffnungszeiten

Mo 09.00-12.00 Uhr + 13.00-16.00 Uhr
Di 09.00-12.00 Uhr + 13.00-17.00 Uhr
Mi geschlossen
Do 09.00-12.00 Uhr
Fr 09.00-12.00 Uhr


Bitte vereinbaren Sie einen Termin.
»»» Kontaktformular 

Sie haben eine Havarie?

Das sind Schäden, aus denen sich eine akute Gefahr für Leben und Gesundheit von Personen ergeben kann bzw. die eine Gefährdung der Gebäude hervorrufen und daher schnellstmöglich behoben werden müssen.


Unsere Havarienummer: 03984 8557-77