Familienfreundlich mit Blick ins Grüne!

Robert-Schulz-Ring 9, 17291 Prenzlau

535 €
Gesamtmiete

3
Zimmer

60,8 m2
Fläche

sofort
Bezugsfrei ab

Mietpreis und Kosten

Nettokaltmiete 385 €
Nebenkosten 70 €
Heizkosten 80 €
Heizkosten enthalten Nein
Gesamtmiete 535 €
Kaution 1155 €

Details

Objektnummer 1.3.3.29
Etage 4
Anzahl Zimmer 3
Wohnfläche 60,8 m2
Baujahr 1972
Heizungsart Fernwärme

Energieausweis

Energieausweisart Verbrauchsausweis
Ausstelldatum 10.11.2023
Jahrgang 2014
Gebäudeart wohn
Primärenergieträger Fernwärme
Wertklasse C
Wärmewert 84,00 kWh/(a m²)
Energieverbrauchkennwert 84.00

Besondere Merkmale

  • Balkon
  • Keller
  • Bad mit Fenster
  • Badewanne

Objektbeschreibung

Die Wohnungen im Robert-Schulz-Ring 1 – 18 verfügen alle über einen Balkon mit Südost-Ausrichtung und Weitblick. Hier kann entspannt und Freizeit genossen werden.

Weiterhin punkten die Wohnungen mit Fenstern in Küche und Bad sowie mit einer Dusche oder einer Badewanne. In allen Häusern können Sie digitales Kabelfernsehen empfangen und Highspeed-Internet ist bis zu 250 Mbit/s verfügbar. Die Warmwasserversorgung erfolgt über eine Gastherme, für die ein zusätzlicher monatlicher Abschlag zu zahlen ist.

Ausstattung

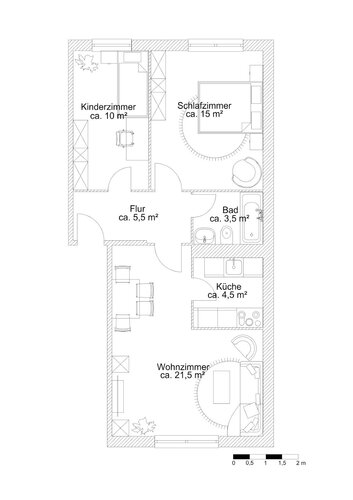
Hier können Sie drei gut geschnittene Zimmer im 4. Obergeschoss anmieten. Die Küche und das Bad verfügen über ein Fenster und vom Balkon aus, können Sie täglich einen tollen Ausblick genießen.
Die Warmwasseraufbereitung erfolgt über eine Gastherme, wofür monatliche Abschläge an die Stadtwerke oder Ihren ausgewählten Versorger zu entrichten sind.

Grundrisse

Lage

Die Stadt Prenzlau ist die Kreisstadt der wunderschönen Uckermark und liegt verkehrsgünstig etwa 100 km nördlich von Berlin und 50 km westlich von Stettin.

Kultur- und Naturliebhaber schätzen die Attraktivität der Stadt, die sich in den letzten Jahren zu einem beliebten Urlaubsziel entwickelt hat. Prenzlau punktet mit einem breit gefächerten Erziehungs- und Bildungsangebot. Neben Kitas, Grund- und weiterführenden Schulen gibt es in Prenzlau darüber hinaus ein Oberstufenzentrum, eine Volkshochschule, eine Musikschule, sowie diverse Aus-, Weiterbildungs- und Umschulungseinrichtungen. Mitten im Stadtgebiet verschmelzen Architektur und Freizeit in seiner schönsten Form: Freilichtbühne, Dominikanerkloster, Uckerseehalle und Seebad laden zum Verweilen und Genießen ein. Prenzlaus Infrastruktur ist gut ausgestattet – Fachgeschäfte, Ärzte, Krankenhaus, Kino, Restaurants und Cafés sind zentral gelegen und schnell erreichbar. Der Stadtbus und auch die Bahn (Richtung Berlin/Stralsund) fahren stündlich.


Stadtgebiet Igelpfuhl – Beste Aussichten für alle Generationen

Wer im Igelpfuhl lebt, schätzt die Wohnungen in familienfreundlichen Größen und die zahlreichen Spiel- und Bolzplätze. Das Stadt-Quartier profitiert vom Einkaufszentrum in der Mitte des Wohngebiets, den Kindergärten, einer Grund- und Oberschule. Zahlreiche Einrichtungen sorgen auch nach Schulschluss für einen erlebnisreichen Tag, zum Beispiel das Freizeitzentrum "Uckerwelle" sowie das Bürgerhaus.

Zum Leben mit Kindern gehört natürlich auch die Generation der Großeltern. Das altersgerechte Wohnhaus am Dreke-Ring 47 ist ein weiterer Pluspunkt.

Das Stadtzentrum ist mit dem Bus gut zu erreichen. Ein schöner Radweg führt abseits der Straßen in die Innenstadt.
Zum Leben mit Kindern gehört natürlich auch die Generation der Großeltern. Das altersgerechte Wohnhaus am Dreke-Ring 47 ist ein weiterer Pluspunkt.

Das Stadtzentrum ist mit dem Bus gut zu erreichen. Ein schöner Radweg führt abseits der Straßen in die Innenstadt.






Standort

Besondere Angebote der Wohnbau

Unser Vermietungsteam

steht Ihnen zu unseren Öffnungszeiten gern telefonisch zur Verfügung.

Telefon: 03984 8557-73

Anschrift

Logo der Wohnbau Prenzlau

Wohnbau GmbH Prenzlau
Friedrichstraße 41
17291 Prenzlau

Telefon: 03984 8557-0

Öffnungszeiten

Mo 09.00-12.00 Uhr + 13.00-16.00 Uhr
Di 09.00-12.00 Uhr + 13.00-17.00 Uhr
Mi geschlossen
Do 09.00-12.00 Uhr
Fr 09.00-12.00 Uhr


Bitte vereinbaren Sie einen Termin.
»»» Kontaktformular 

Sie haben eine Havarie?

Das sind Schäden, aus denen sich eine akute Gefahr für Leben und Gesundheit von Personen ergeben kann bzw. die eine Gefährdung der Gebäude hervorrufen und daher schnellstmöglich behoben werden müssen.


Unsere Havarienummer: 03984 8557-77