Perfekte Lage für lange Spaziergänge

Röpersdorfer Straße 15, 17291 Prenzlau

595 €
Gesamtmiete

3
Zimmer

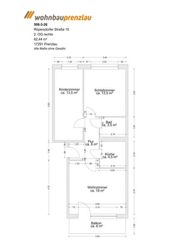
62,44 m2
Fläche

sofort
Bezugsfrei ab

Mietpreis und Kosten

Nettokaltmiete 400 €
Nebenkosten 105 €
Heizkosten 90 €
Heizkosten enthalten Nein
Gesamtmiete 595 €
Kaution 1200 €

Details

Objektnummer 1.508.3.26
Etage 2
Anzahl Zimmer 3
Wohnfläche 62,44 m2
Baujahr 1979
Heizungsart Zentralheizung

Energieausweis

Energieausweisart Verbrauchsausweis
Ausstelldatum 21.11.2017
Jahrgang 2014
Gebäudeart wohn
Primärenergieträger GAS
Wertklasse C
Wärmewert 89,00 kWh/(a m²)
Energieverbrauchkennwert 89.00

Besondere Merkmale

  • Balkon
  • Keller
  • Badewanne

Objektbeschreibung

Der Klassiker WBS 70 - diese Wohnungen sind Kult!Die Grundrisse sind effektiv gestaltet – die Wege kurz, das Platzangebot groß und die Miete klein! Jede Wohnung verfügt über einen geräumigen Balkon.

Hier empfangen Sie digitales Fernsehen und High-Speed-Internet mit garantierten 100 Mbit/s steht ebenfalls zur Verfügung. Teilweise können auch höhere Geschwindigkeiten angeboten werden – Ihr Internetprovider gibt Ihnen gern eine Auskunft.

Grundrisse

Lage

Die Stadt Prenzlau ist die Kreisstadt der wunderschönen Uckermark und liegt verkehrsgünstig etwa 100 km nördlich von Berlin und 50 km westlich von Stettin.

Kultur- und Naturliebhaber schätzen die Attraktivität der Stadt, die sich in den letzten Jahren zu einem beliebten Urlaubsziel entwickelt hat. Prenzlau punktet mit einem breit gefächerten Erziehungs- und Bildungsangebot. Neben Kitas, Grund- und weiterführenden Schulen gibt es in Prenzlau darüber hinaus ein Oberstufenzentrum, eine Volkshochschule, eine Musikschule, sowie diverse Aus-, Weiterbildungs- und Umschulungseinrichtungen. Mitten im Stadtgebiet verschmelzen Architektur und Freizeit in seiner schönsten Form: Freilichtbühne, Dominikanerkloster, Uckerseehalle und Seebad laden zum Verweilen und Genießen ein. Prenzlaus Infrastruktur ist gut ausgestattet – Fachgeschäfte, Ärzte, Krankenhaus, Kino, Restaurants und Cafés sind zentral gelegen und schnell erreichbar. Der Stadtbus und auch die Bahn (Richtung Berlin/Stralsund) fahren stündlich.


Vorstadt – Ganz nah an der Landschaft

Wer gerne zugleich drinnen und draußen wohnen möchte, ist in der Neustädter Vorstadt genau richtig. Hier lebt es sich zwischen Neustädter Damm/Berliner Straße und dem ruhigen Westufer des Uckersees weit beschaulicher als im Stadtzentrum. Etliche der Wohnbauwohnungen haben hier sogar direkten Seeblick. Dafür, dass trotzdem die Innenstadt ganz nahe ist, sorgt im 20-Minuten-Takt die Buslinie 448.

Ohne Bus erreicht man eine der wichtigen Adressen der Prenzlauer Bildungslandschaft: die Grabow-Schule ist direkter Nachbar der Wohnbau-Häuser in der Röpersdorfer Straße. Hier verbinden sich preiswerter Wohnraum und kurzer Schulweg: für Berufsstarter eine gute Möglichkeit, alleine oder mit Freunden die erste Eigene Wohnung zu beziehen.

Standort

Besondere Angebote der Wohnbau

Unser Vermietungsteam

steht Ihnen zu unseren Öffnungszeiten gern telefonisch zur Verfügung.

Telefon: 03984 8557-73

Anschrift

Logo der Wohnbau Prenzlau

Wohnbau GmbH Prenzlau
Friedrichstraße 41
17291 Prenzlau

Telefon: 03984 8557-0

Öffnungszeiten

Mo 09.00-12.00 Uhr + 13.00-16.00 Uhr
Di 09.00-12.00 Uhr + 13.00-17.00 Uhr
Mi geschlossen
Do 09.00-12.00 Uhr
Fr 09.00-12.00 Uhr


Bitte vereinbaren Sie einen Termin.
»»» Kontaktformular 

Sie haben eine Havarie?

Das sind Schäden, aus denen sich eine akute Gefahr für Leben und Gesundheit von Personen ergeben kann bzw. die eine Gefährdung der Gebäude hervorrufen und daher schnellstmöglich behoben werden müssen.


Unsere Havarienummer: 03984 8557-77